- Характеристики товара

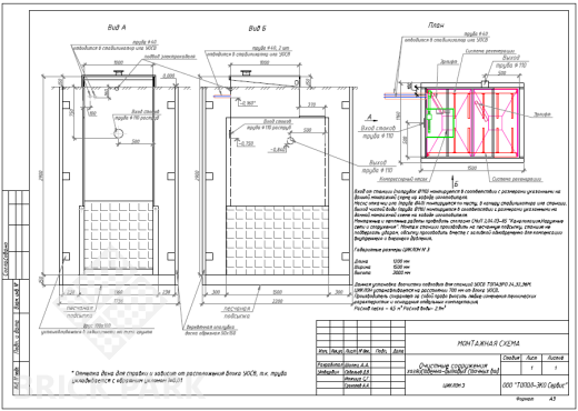
Установка доочистки хозяйственно-бытовых сточных вод ТОПЛОС-ЦИКЛОН 3
«ЦИКЛОН 3» используется для дополнительного оснащения очистных сооружений. Производительность последних может быть любой. Основным предназначением данного модуля является обеспечение доочистки бытовых/хозяйственных стоков перед их сбросом в землю или водоем.
Установка разрушает остаточные загрязнения органического происхождения, которые содержатся в стоках. По большинству базовых параметров степень доочистки достигает 50 %. Это финальная стадия биологической очистки.
Биореактор «ЦИКЛОН» не имеет аналогов на отечественном рынке






